서울 구로구 개봉동 호반써밋 개봉 84타입 잔여세대 청약 정보 및 분석
서울특별시 구로구 개봉동에 위치한 호반써밋 개봉의 임의 공급 1차 청약 정보를 정리해보겠습니다. 이 단지는 2024년 12월 입주 예정으로, 총 317세대 규모의 아파트 단지입니다. 이번 청약에서는 84㎡ 타입의 두 세대가 공급되며, 청약 일정과 분양가, 자격 조건 등을 중심으로 자세히 분석해보겠습니다.

호반써밋 개봉: 단지 개요 및 입지 분석
호반써밋 개봉은 구로구 개봉동 69-11번지에 위치한 주거단지로, 총 317세대가 3개 동으로 구성되어 있습니다. 지하 3층부터 지상 24층까지 이루어져 있으며, 전용면적 49㎡, 59㎡, 84㎡, 114㎡ 등 다양한 평형대를 제공합니다. 이 단지는 구로구의 핵심 입지에 위치해 있어, 교통과 생활 인프라가 우수하며, 실거주자에게 매우 적합한 주거 환경을 제공합니다.
단지 주요 정보

- 단지명: 호반써밋 개봉
- 주소: 서울특별시 구로구 개봉동 69-11
- 주택 유형: 공동주택(아파트)
- 세대수: 317세대, 총 3개 동 (지하 3층 ~ 지상 24층)
- 주택형: 49㎡, 59㎡, 84㎡, 114㎡
- 용적률/건폐율: 299% / 21%
- 주차 대수: 총 333대(세대당 1.05대)
- 입주 예정일: 2024년 12월
- 규제지역 여부: 비규제지역
- 재당첨 제한: 없음
- 전매 제한: 1년
- 거주의무기간: 없음
- 분양가상한제: 미적용
호반써밋 개봉은 비규제지역에 위치해 있어, 청약 조건이 비교적 완화되어 있으며, 전매 제한이 1년으로 짧습니다. 서울 내에서 교통과 생활 인프라가 잘 갖춰져 있는 구로구에 위치해, 실수요자들에게 높은 주거 편의성을 제공합니다.
청약 일정 및 절차
호반써밋 개봉의 임의 공급 1차 청약 일정은 2024년 8월 26일 입주자 모집 공고를 통해 시작됩니다. 이후 9월 4일에 청약 접수가 진행되며, 당첨자는 9월 9일에 발표됩니다. 서류 접수는 9월 10일에, 계약 체결은 9월 11일에 진행될 예정입니다.
청약 일정

- 모집 공고일: 2024년 8월 26일(월)
- 청약 접수일: 2024년 9월 4일(수)
- 당첨자 발표일: 2024년 9월 9일(월)
- 서류 접수일: 2024년 9월 10일(화)
- 계약 체결일: 2024년 9월 11일(수)
이번 청약은 청약 통장이 없어도 신청할 수 있으며, 재당첨 제한이나 전매 제한이 없는 만큼 다양한 수요자들이 접근할 수 있는 기회입니다. 모든 당첨자와 동호수는 무작위 추첨으로 선정되며, 예비당첨자는 모집 세대의 900%까지 선발됩니다.
청약 자격 및 당첨자 선정 기준
호반써밋 개봉의 이번 임의 공급 1차 청약에서는 청약 통장 유무와 관계없이 만 19세 이상의 성년자나 세대주인 미성년자라면 누구나 신청할 수 있습니다. 당첨자는 무작위 추첨으로 선정되며, 동호수 배정도 무작위로 이루어집니다.

청약 자격 요건
- 거주 요건: 만 19세 이상의 국내 거주 성년자 또는 세대주인 미성년자.
- 청약 통장: 필요 없음.
- 재당첨 제한: 없음.
당첨자 선정 방식
- 무작위 추첨: 모든 당첨자와 동호수는 무작위로 결정되며, 예비당첨자는 900%까지 선발됩니다.
이번 청약은 청약 통장이 없는 사람도 참여할 수 있으며, 재당첨 제한이 없어 다양한 수요자들이 접근할 수 있는 기회를 제공합니다. 또한, 동호수는 무작위 추첨으로 배정되므로, 투명하고 공정한 방식으로 청약이 진행됩니다.
공급 세대 정보 및 분양가
이번 호반써밋 개봉의 임의 공급 1차 청약에서는 전용면적 84㎡의 2가지 타입이 제공되며, 총 2세대가 공급됩니다. 이들 세대는 실수요자들에게 적합한 중형 평형대로 구성되어 있어, 가족 단위 거주자들에게 특히 매력적인 선택지가 될 것입니다.

공급 세대수
- 84B 타입: 7세대
- 84C 타입: 2세대
분양가
- 84B 타입: 9억 1천5백60만 원 ~ 9억 8천3백80만 원 (발코니 확장비: 1천9백60만 원, 추가 옵션: 3백60만 원)
- 84C 타입: 9억 3천9백90만 원 ~ 9억 7천9백만 원 (발코니 확장비: 2천1백20만 원, 추가 옵션: 3백60만 원)
호반써밋 개봉의 분양가는 서울 내 신축 아파트라는 점을 고려했을 때, 합리적인 수준으로 책정되었습니다. 특히 중형 평형대를 원하는 실수요자들에게는 적합한 가격대로, 현재 시세와 비교해 볼 때 경쟁력 있는 선택이 될 수 있습니다.
동호수 배치도
호반써밋 개봉의 동호수 배치도는 아래와 같습니다.

타입별 평면도
84B 평면도
- 주거전용면적 : 84.6140㎡
- 주거공용면적 : 29.7440㎡
- 기타공용면적 : 63.7930㎡
- 계약면적 : 178.151㎡
- 공급면적 : 114.358㎡

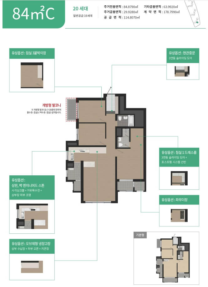
84C 평면도
- 주거전용면적 : 84.879㎡
- 주거공용면적 : 29.928㎡
- 기타공용면적 : 63.992㎡
- 계약면적 : 178.799㎡
- 공급면적 : 114.807㎡

자금 계획과 납부 일정
청약에 당첨된 후에는 계약금, 중도금, 잔금으로 이어지는 납부 일정을 철저히 따라야 합니다. 계약금은 분양가의 5%이며, 중도금은 분양가의 5%가 청약 당첨 후 9월 20일에 납부됩니다. 잔금은 입주지정일에 납부하게 됩니다.
납부 일정
- 계약금: 분양가의 5% (2024년 9월 11일)
- 중도금: 분양가의 5% (2024년 9월 20일)
- 잔금: 입주지정일 (2024년 12월 예정, 정확한 날짜는 추후 통보)
자금 계획을 철저히 세워 중도금과 잔금 납부 시 문제가 발생하지 않도록 준비해야 합니다. 특히, 중도금 대출을 고려하는 경우, 대출 한도와 조건을 미리 확인하는 것이 중요합니다. 입주 시점에 맞춰 주택담보대출을 활용할 계획이 있다면, 금리와 대출 가능성을 미리 파악해 안정적인 자금 운영을 준비하는 것이 좋습니다.
결론: 호반써밋 개봉의 기회

호반써밋 개봉은 구로구의 핵심 지역에 위치한 아파트로, 실수요자와 투자자 모두에게 매력적인 선택지가 될 수 있습니다. 이번 임의 공급 1차 청약에서는 총 2세대가 공급되며, 중형 평형대로 구성된 이 단지는 쾌적한 주거 환경과 더불어 합리적인 분양가로 주목받고 있습니다.
입지와 미래 가치
호반써밋 개봉은 구로구의 주요 생활 인프라와 인접해 있어 실거주자들에게 높은 편의성을 제공합니다. 이 지역의 발전 가능성을 고려할 때, 장기적인 투자 가치도 충분히 기대할 수 있습니다.
투자 가치
호반써밋 개봉은 비규제지역에 위치해 있어 투자자들에게도 유리한 조건을 제공합니다. 전매 제한이 1년으로 짧으며, 청약 자격이 넓게 설정되어 있어 다양한 수요자들이 접근할 수 있습니다.
결론적으로, 호반써밋 개봉은 구로구 내에서 안정적이고 쾌적한 주거 환경을 제공하는 아파트로, 내 집 마련과 투자를 동시에 고려하는 분들에게 적합한 청약 기회입니다.
'재테크 공부하기' 카테고리의 다른 글
| 경기도 이천시 증일동 힐스테이트 이천역 1단지: 입주자 청약 일정 분양가 모집공고 분석 (4) | 2024.09.05 |
|---|---|
| 울산광역시 남구 야음동 번영로 하늘채 라크뷰 청약 정보 분양가 총정리 (0) | 2024.08.27 |
| 관저 푸르지오 센트럴파크 2단지 무순위(임의 공급 6차) 청약 정보 및 분석 (1) | 2024.08.26 |
| 서울 서대문구 홍은동 서대문 센트럴 아이파크 무순위 청약 정보 일정 분양가 분석 (0) | 2024.08.25 |
| 서울 성동구 행당동 라체르보 푸르지오 써밋 청약 정보 및 분석 (0) | 2024.08.24 |
댓글